Neubauten Schulanlage Stock, Rombach

Auftraggeber Gemeinde Küttigen
Jahr 2021–2026
Ort Rombach
Projektstand in Planung (Wettbewerb 2021, 1. Preis)
Visualisierung Studio Diode, Zürich
  • Auf Karte anzeigen

Die Schulanlage Stock soll erweitert werden: Im Projekt von Metron verbinden sich Sporthalle und Musikschule in einem Neubau, dem die Jury das Potenzial als «neues Eingangsbild des Dorfs» attestiert hat: «Der Neubau mit Sporthalle und Musikschule setzt in der heterogenen Umgebung einen Akzent – grosszügig, ruhig und durchlässig.»

Der dreigeschossige Bau erdet das Umfeld in einer klaren Geste und schafft Sichtbezüge in alle Richtungen. Ein identitätsstiftender Ort entsteht, der sowohl der Schule als auch dem Dorf neue Möglichkeiten eröffnet – für Sportveranstaltungen, Konzerte und als Treffpunkt.

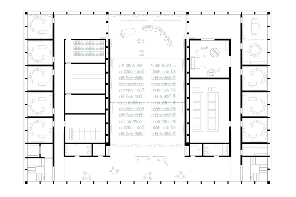
Der Haupteingang richtet sich auf die bestehenden Schulbauten aus – gut sichtbar; die Wege sind kurz. Vom Vorplatz gelangt man über den gedeckten Vorbereich in die grosszügige Eingangshalle. Sie empfängt die Eintretenden als helles Foyer mit Zuschauergalerie: Von hier öffnet sich der Blick auf die ganze Länge der Sporthalle. Ihr Luftraum reicht über drei Geschosse; auf Höhe Erdgeschoss öffnet sich die Halle mit Fenstern nach Süden und bietet Vorbeigehenden grosszügige Einblicke. Über die Erschliessungskerne gelangt man hinauf in die Garderoben und in den Kulturbereich im obersten Geschoss.

Wie eine Laterne öffnet sich das Musikgeschoss allseitig in Fensterbändern. Konzert- und Kammermusiksaal sowie das Musikfoyer liegen in einer räumlichen Abfolge zwischen Ost- und Westfassade. Werden Konzert- und Kammermusiksaal sowie Foyer zusammengeschlossen, ergibt sich ein spektakulärer Saal für 250 bis 300 Leute. Er bietet einen herrlichen Blick auf Schule, Dorf und Landschaft.

Das Dach wird zur fünften Fassade: Die Oblichter des Shed lösen die kompakte Volumetrie in einzelne Lichträume auf und tauchen sie je nach Tageszeit und Wetter in wechselnde Stimmungen. Ausblicke auf Himmel und Landschaft öffnen sich. Am Abend hellt der Musiksaal als festlich leuchtende Krone das Nachtbild des Dorfkerns auf.

Zur Aktuell-Meldung

Spatenstich: Neubau Schulareal Stock startet

Zweimal 37 Tonnen Fachwerk für Neubau Schule Rombach

Alle involvierten Tätigkeitsbereiche
Architektur / Bildung Wettbewerbe