Leben an der Thur, Kleinandelfingen

Auftraggeber Baugesellschaft Leben an der Thur c/o Pomanco AG
Jahr 2017–2023
Ort Kleinandelfingen
Projektstand Ausgeführt, Bauprojekt und Gestaltung Metron Architektur AG, Ausführungsplanung Meyer Stegemann Architekten
Fotos Roger Frei, Zürich
  • Auf Karte anzeigen

Kleinandelfingen ist ein attraktiver Wohnstandort inmitten des Zürcher Weinlandes. In unmittelbarer Nähe zur Thur, am Rande der Dorfkernzone, führen drei Neubauten die bestehenden Dorfstrukturen fort und sprechen zugleich eine neue, selbstbewusste Architektursprache.

Ensemble dreier Wohngebäude

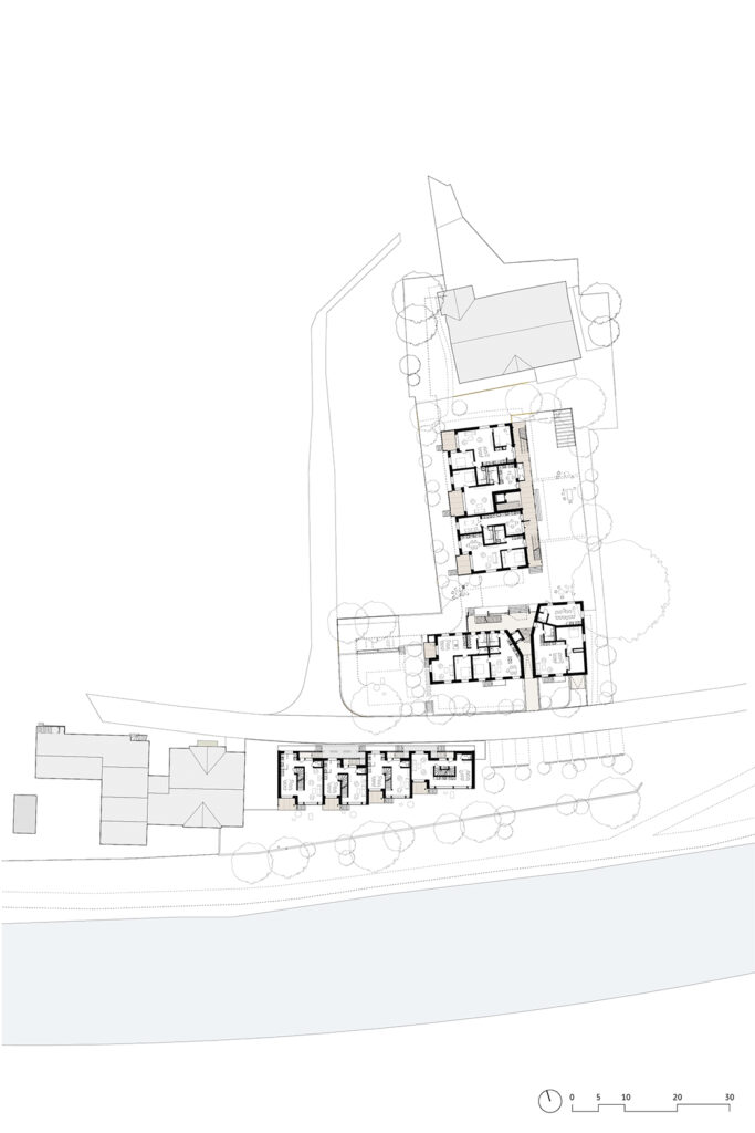
Das Ensemble besteht aus einem Reihenhaus zwischen Strasse und Thur und zwei Häusern mit Etagenwohnungen auf der anderen Strassenseite, die sich – einem Bauernhaus und dem dazugehörigen, rückwärtigen Wirtschaftsgebäude gleich – einen grosszügigen Hof teilen. Von dort aus erfolgt ihre Erschliessung über Laubengänge: pragmatische, offene Orte der Begegnung und subtile Übergänge zum privaten Wohnraum. Durch die unterschiedliche Ausformulierung der Lauben – einmal als lineare Erschliessung mit zwei Treppen und markantem Holzfachwerk und einmal als kompakte, skulpturale Erschliessung in Betonausführung – erhalten die beiden Gebäude als Strassen- und Hofhaus sehr unterschiedlich Charaktere.

Ortstypisch, modern interpretiert

Einfache, langlebige Materialien mit Anspruch auf eine hohe Funktionalität führen die ortstypische Sprache bäuerlicher Vielzweckbauten weiter und interpretieren sie neu. Alle drei Häuser verfügen über einen Sockel aus rohem Beton. Er dient dem Hochwasserschutz, gliedert die Gebäude und schafft etwas Abstand zwischen den erhöhten Erdgeschossen und den öffentlichen Räumen. Metallbauteile sind feuerverzinkt, Maschendraht dient an den tiefen Fenstern und den Laubengängen als Geländer. Auch die Holzlattungen der Fassaden spielen mit den vorhandenen Strukturen: Die sägerohe Ausführung am Hofhaus und die gehobelte Ausführung am Strassenhaus unterstreichen die Positionen der Gebäude im Dorfgefüge.

Im Haus auf der anderen Strassenseite, das einen Holzlagerschuppen der alten Schreinerei ersetzt, werden traditionelle Zimmermanns-Konstruktionen mit Sparren, Pfetten und Sprengwerk eingesetzt. Schmale Treppenverbindungen bieten den Reihenhäusern individuelle Zugänge.

Leben an der Thur

Mit dem Ensemble der drei Gebäude am Fluss ist ein vielfältiger, lebendiger und durchmischter Ort mit kleinen und mittleren Wohnungen sowie kleinen Reihenhäusern entstanden, der durch einen nachhaltigen, sorgsamen Umgang mit der Fläche kostengünstigen Wohnraum für alle Generationen anbieten.

Ausgezeichnet

Im Rahmen des Architekturpreises des Kantons Zürich erhielt das Projekt 2025 eine Anerkennung. Die Jury lobte insbesondere das Fingerspitzengefühl, mit dem der Charakter des Dorfs aufgenommen wird und mit einem „zeitgemässen Twist“ Ausdruck in der Architektur findet. Zur Beurteilung der Jury

 

Studien, Bauprojekt und gestalterische Begleitung der Ausführung: Metron Architektur AG
Ausführungsplanung: Meyer Stegemann Architekten.

Alle involvierten Tätigkeitsbereiche
Architektur / Wohnen