Studienauftrag Hühnerbühl, Horgen

Auftraggeber Baugenossenschaft Heubach
Jahr 2022
Ort Horgen
Projektstand selektiver Studienauftrag, 2. Durchgang
Visualisierung Studio Diode, Zürich
  • Auf Karte anzeigen

Die Genossenschaftssiedlung Hühnerbühl liegt am Rand von Horgen und bietet einen herrlichen Blick über den Zürichsee. Um die Siedlung zukunftsfähig zu machen und ihren Bewohnern weiterhin hochwertigen und bezahlbaren Wohnraum zu bieten, hat die Baugenossenschaft Heubach beschlossen, die vier Zeilenbauten aus der Nachkriegszeit zu ersetzen. Fünf Teams wurden ausgewählt, um in einem zweistufigen Studienauftrag einen zeitgemässen Vorschlag für die Siedlung zu entwickeln.

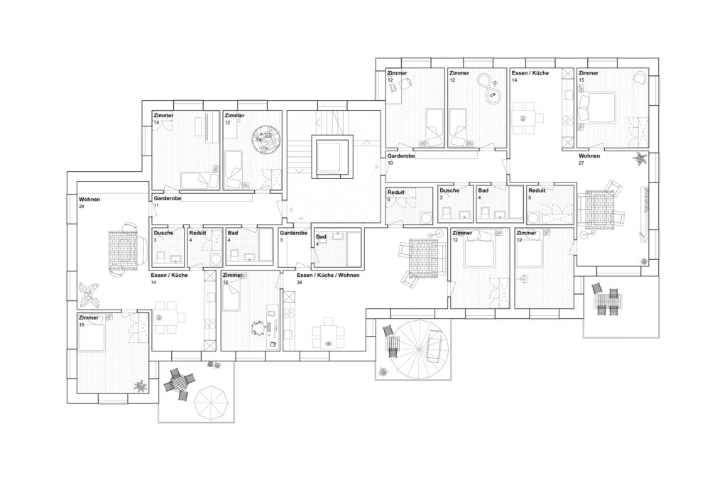
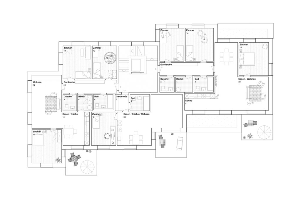
Metron hat in einem interdisziplinären Entwurfsprozess verschiedene städtebauliche Ansätze geprüft. Die bekannte Zeilenbebauung hat letztlich überzeugt: Vier Häuser reihen sich längs zum Hang auf, dass sie sich möglichst wenig selbst und gegenseitig beschatten. Auf diesem Weg profitieren alle 40 Wohnungen von viel Sonne und, dank der abgestuften Fassaden, einem Blick in die Ferne und auf den Zürichsee.

Das Projekt setzt auf eine rationelle, einfache und dauerhafte Konstruktion. Die Fassade in verputztem Einsteinmauerwerk umhüllt Tragstruktur und Decken aus Recyclingbeton. Technische Installationen werden getrennt geführt; der Ausdruck ist ruhig und unaufgeregt. Der Fussabdruck der Gebäude und Tiefgarage wurde zugunsten großer Freiflächen und des Wasserhaushalts minimiert.

Durch den Versatz der Bauten entstehen grosszügige Aussenräume. Anbauflächen, Spielplatz, Grillstelle und eine Dachterrasse auf dem Quartierladen lockern die dichte Bebauung auf. Die Integration bestehender Wegverbindungen in die neue Siedlung ermöglicht eine einfache Orientierung, eine gute Vernetzung mit dem Quartier und eine klare Adressierung. So verbinden sich begrünter Aussenraum, ein neuer Gemeinschaftsraum und die neu positionierten Häuserzeilen zu einem identitätsstiftenden Ensemble für heutige und künftige Bewohnende.

Alle involvierten Tätigkeitsbereiche
Architektur / Wohnen Wettbewerbe